AT100 Power & Free Range-Förderbandprojekt im Gange
24th March 2025
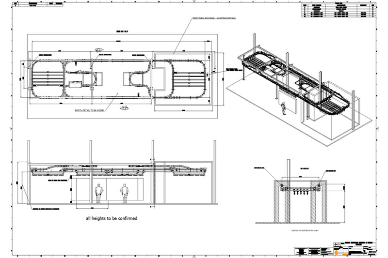
Dies ist ein aktuelles Projekt, das wir entwickeln und das im Mai fertig gestellt und einbaufertig sein wird. Das Förderband stammt aus unserer AT100 Power-and-Free-Reihe mit einer Wagentragfähigkeit von jeweils 100 kg. Die Konfiguration mit zwei Wagenlastbalken bietet eine Tragfähigkeit von 200 kg bei Produktabmessungen von bis zu 3000 mm in Reihe, 2100 mm Höhe und 200 mm Breite mit 360-Grad-Drehung. Das System bietet ein hocheffizientes und kompaktes Design durch die Nutzung der Power-and-Free-Funktionalität mit seitlicher Verschiebung im Ofen und in der Ladebucht. Weitere Updates folgen.



#AmberIndustries #Förderer #Fördersysteme #Palettensysteme #Schwerkraftförderer #Angetriebene Förderer #Bandrollen #Wellenförderer #Kettenförderer #Lamellenförderer #Flughafenförderer #Sortierförderer #Transferförderer #Überkopfförderer #UK-Förderer #Materialhandhabung
Other Articles
AT100 Power & Free Range-Förderbandprojekt im Gange
24th March 2025
Maßgeschneiderte Handhabungslösungen
3rd March 2025
Amber Industries am Stand G10N auf der Surface World
26th February 2025
Besuchen Sie Amber Industries auf der Surface World 2025
13th February 2025
Maßgeschneiderte Handhabungslösungen
4th February 2025
Wartungs- und Reparaturdienste für Förderbänder
9th January 2025
Weihnachtsgrüße von Amber Industries
9th December 2024
Zusatzausrüstung von Amber Industries
5th November 2024
Stahllamellen-, modulare Kunststoff- und Drahtgeflecht-Bandförderer
2nd October 2024
Amber Automation Paletten- und Schwerlastkettenförderer
3rd September 2024